Philadelphia Carriage Houses: Elegant style and the convenience of Roxborough / Manayunk

Kingsley Court Real Estate for Sale in Philadelphia

HomeSite PlanFeaturesLocationFloorplansContact Us

Floorplans | Elevations

Customization available for floor plans. (This link will open some other options available for additional cost - depending on the finished space.)

First Floor

Second Floor

Third Floor

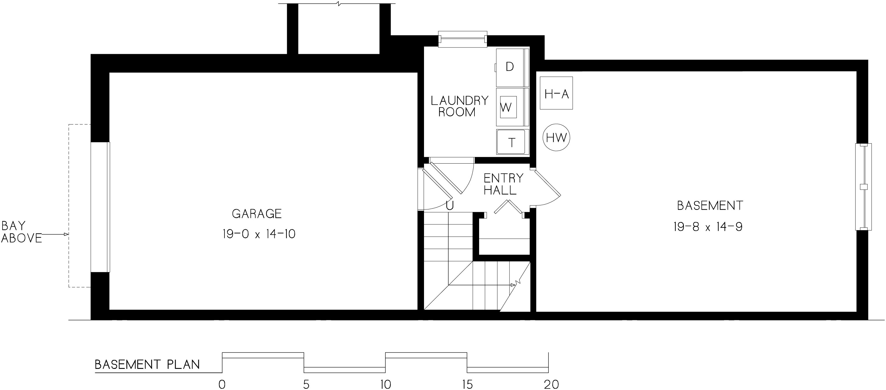
Bassement

Welcome to Kingsley Court

Philadelphia is a great place to live and Roxborough is one of the best neighborhoods to live in.