Philadelphia Carriage Houses: Elegant style and the convenience of Roxborough / Manayunk

Kingsley Court Real Estate for Sale in Philadelphia

HomeSite PlanFeaturesLocationFloorplansContact Us
Following are customized upgrades available at an additional cost depending on the finished space:

Second Floor Laundry


Third Floor Bathroom and Closet


Basement With Bedroom Suite


Bassement with Family Foom and Powder Room


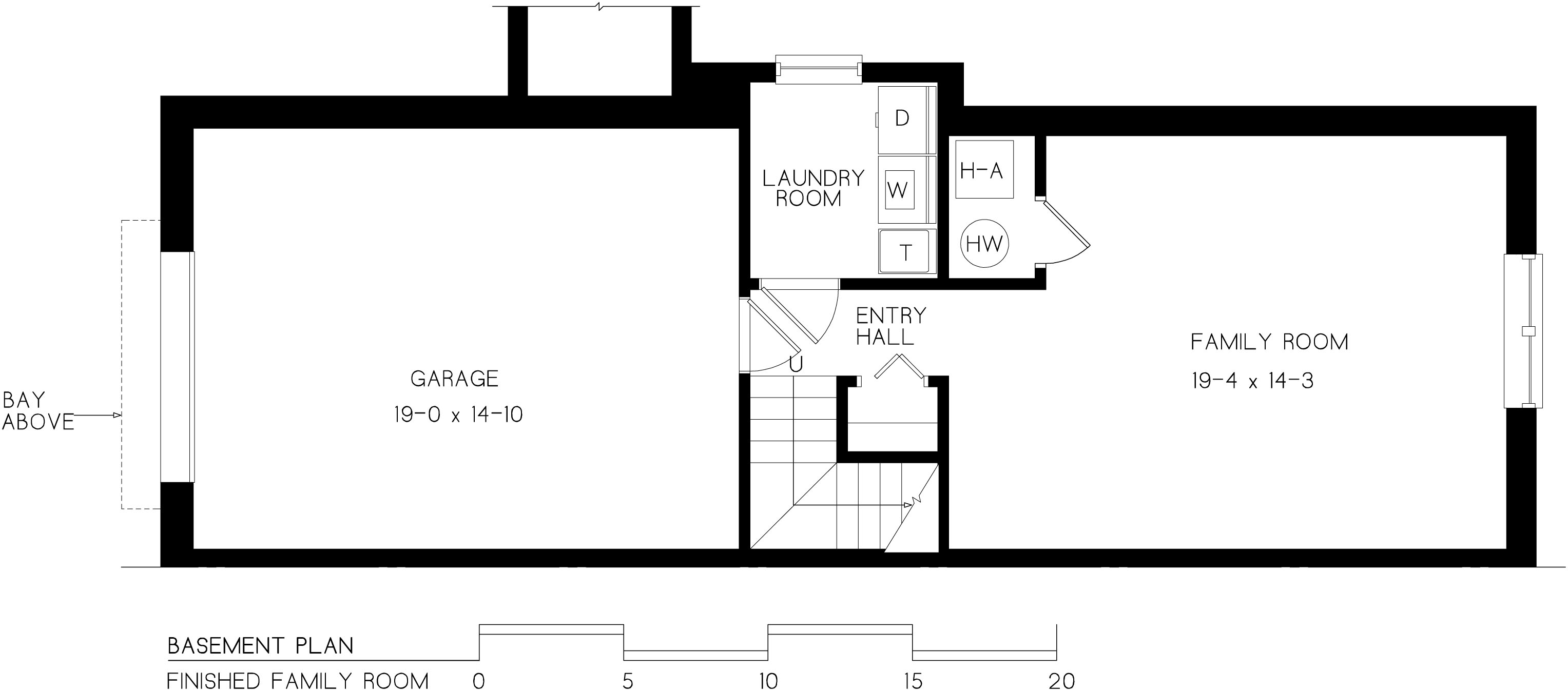
Basement with Finished Family Room

Welcome to Kingsley Court

Philadelphia is a great place to live and Roxborough is one of the best neighborhoods to live in.