
|
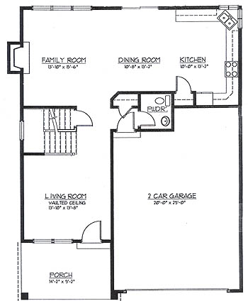
2 Story, 4 Bedrooms, 2 1/2 Baths |
![]() |
|
Family Room 13'10" x 15'6" Dining Room 10'8" x 13'2" Living Room 13'10" x 13'8" Kitchen 10'10" x 13'2" 2 Car Garage 20'0" x 29'0" Additional Spaces Powder Room Porch |
|
Master Bedroom 13'0" x 15'6" Bedroom #1 11'8" x 13'2" Bedroom #2 9'10" x 13'6" Bedroom #3 9'10" x 15'0" Additional Spaces Master Bath Walk-In Closet Hall Bathroom Laundry Room |
If you would like more information about new home construction, please click here.
Communities |
Company Information |
Quick Deliveries
Custom Homes |
Philadelphia Region |
Contact Us |
Home